当前位置:
长宁区
 / 区规划资源局
 / 规土动态
 / 最新公告
/ 稿件页
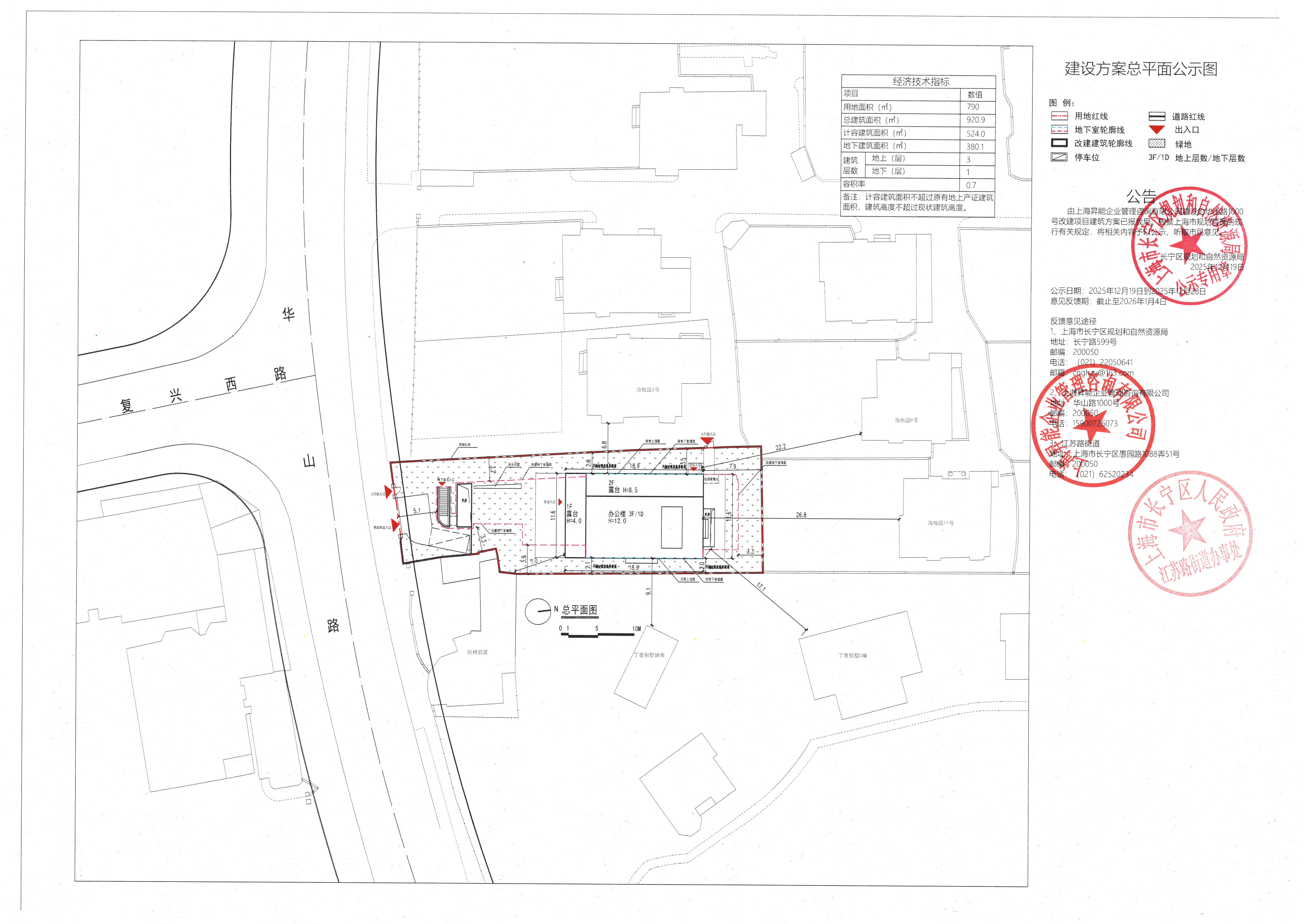
关于华山路1000号改建项目建筑方案总平面图予以公示
发布日期:2025年12月19日
打印本页
关闭窗口